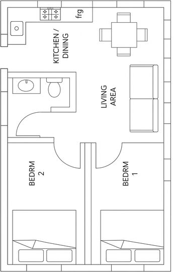
2 Bedroom Home + Studio Apartment

A practical and modern two-bedroom unit designed for comfort and functionality, featuring open-plan living, well-proportioned bedrooms, and thoughtful layouts that make the most of every space.

A self-contained studio seamlessly attached to the main home, offering privacy and independence with its own living, bathroom, and kitchenette — perfect for guests, extended family, or rental income

A deluxe home design that combines a modern two-bedroom unit with a private studio apartment. Perfect for families and extended living, this layout offers flexible space for guests, teenagers, or rental opportunities — blending comfort, privacy, and contemporary island style.
We use cookies to analyze website traffic and optimize your website experience. By accepting our use of cookies, your data will be aggregated with all other user data.